Venta de villa en Finestrat, Finestrat

Referencia:

V1-N7627

Villa en venta

Finestrat, Finestrat mapa

1.050.000 € (impuestos y gastos no incluídos)
315 m2
4
4
Descripción

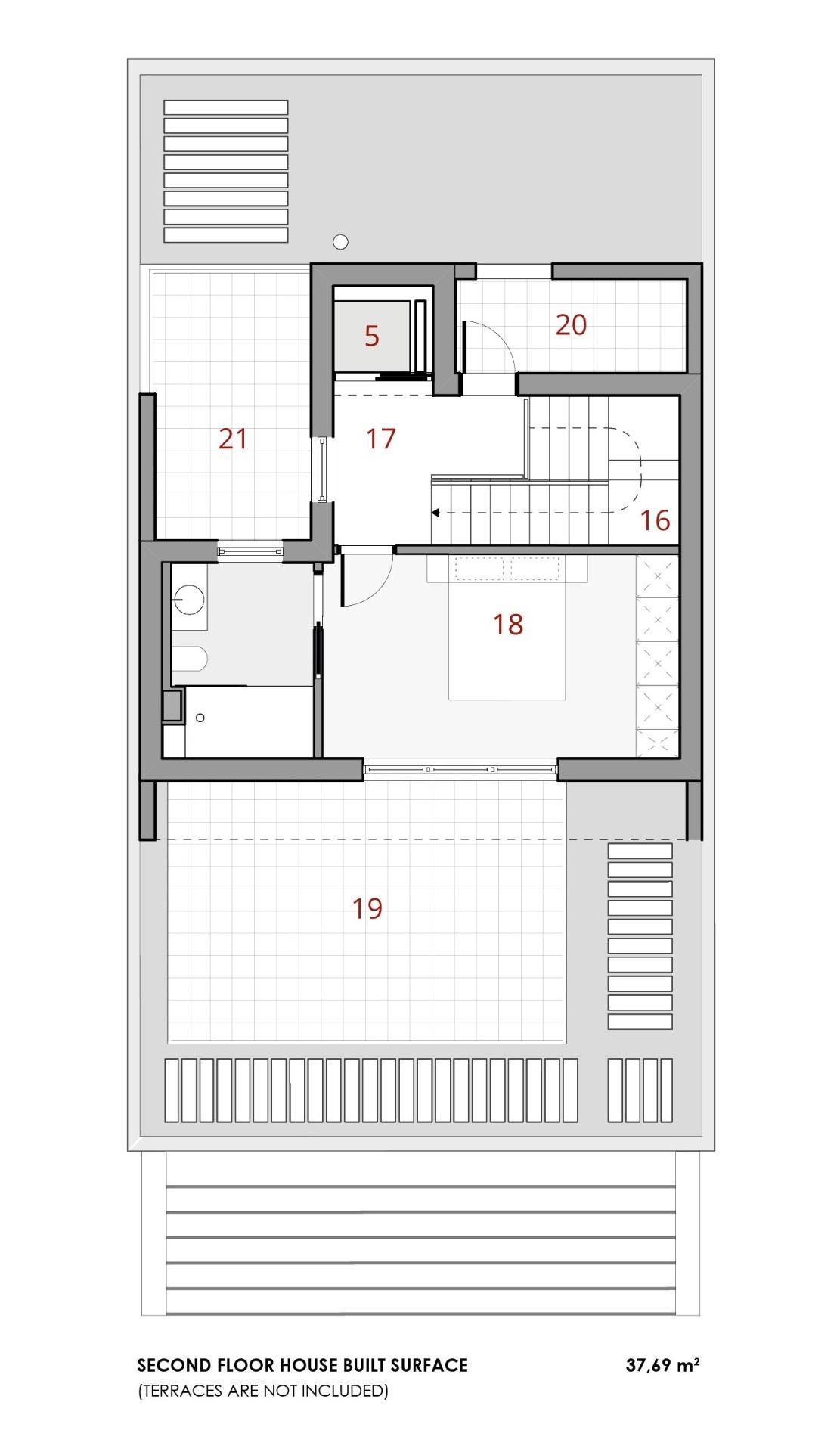
Villa en Finestrat, con 315 m² construidos, 173 m² útiles, 620 m² metros de parcela, 4 dormitorios, 4 baños, piscina privada

VILLAS DE OBRA NUEVA EN FINESTRAT Villas modernas de obra nueva en Finestrat. Villas con 4 dormitorios y 4 baños, cocina americana con salón, terraza con magníficas vistas sobre Benidorm, jardín privado con piscina y plaza de aparcamiento. El jardín lateral, adornado con cactus y grava blanca, conecta el Nivel 1 de acceso con la planta principal Nivel O. El uso de césped natural en el resto del terreno se presenta como una característica adicional a través de un proyecto de paisajismo meticulosamente diseñado. Cada nivel se acentúa con un material que realza su esencia. El nivel O está revestido de piedra caliza natural, que proporciona soporte a toda la estructura. El Nivel 1, con su acabado monocapa y sus contraventanas de madera, protege la parte más íntima de la residencia. Por último, el Nivel 2, donde se encuentra el dormitorio principal, se abre a una amplia terraza y está acabado con monocapa texturizado en un tono cálido. La estética mediterránea se consigue mediante una perfecta fusión de tradición, arquitectura moderna y naturaleza. Finestrat se encuentra en la comarca de la Marina Baixa de la Costa Blanca, cerca de la vecina Benidorm y a unos 40 kilómetros de la ciudad de Alicante y del aeropuerto internacional. El pueblo está situado en la ladera del Puig Campana y ofrece hermosas vistas de las montañas, la costa y el mar Mediterráneo. Benidorm está a sólo cinco minutos en coche de las propiedades y ofrece todos los servicios que pueda necesitar, incluyendo tiendas, bares, restaurantes, supermercados, bancos, farmacias y varias escuelas privadas internacionales.

Características
Inmueble
  • 315 M2 Construidos
  • 173 M2 Útiles
  • 620 M2 Metros de parcela
  • 4 Dormitorios
  • 4 Baños
Edificio
Extras
  • Piscina privada
Certificado energético
certificado energético
Simulador de hipoteca
Precio inmueble
Impuestos y gastos
Precio + gastos
0 €
Ahorro aportado
Plazo en años
Interés
Tu cuota mensual
0
Estos resultados son orientativos, calculados con los números que has introducido.
Mapa
Otros inmuebles que podrían ser de su interés

Pisos Torrevieja y Casas Torrevieja

Esta página web utiliza cookies

Una cookie informática es un pequeño archivo de información que se guarda en tu navegador cada vez que visitas nuestra página web.

Nuestra página web utiliza entre otras, cookies técnicas que son imprescindibles para que la página pueda funcionar. Las tenemos activadas por defecto, pues no necesitan de tu autorización.

Más información en nuestro apartado POLÍTICA DE COOKIES.