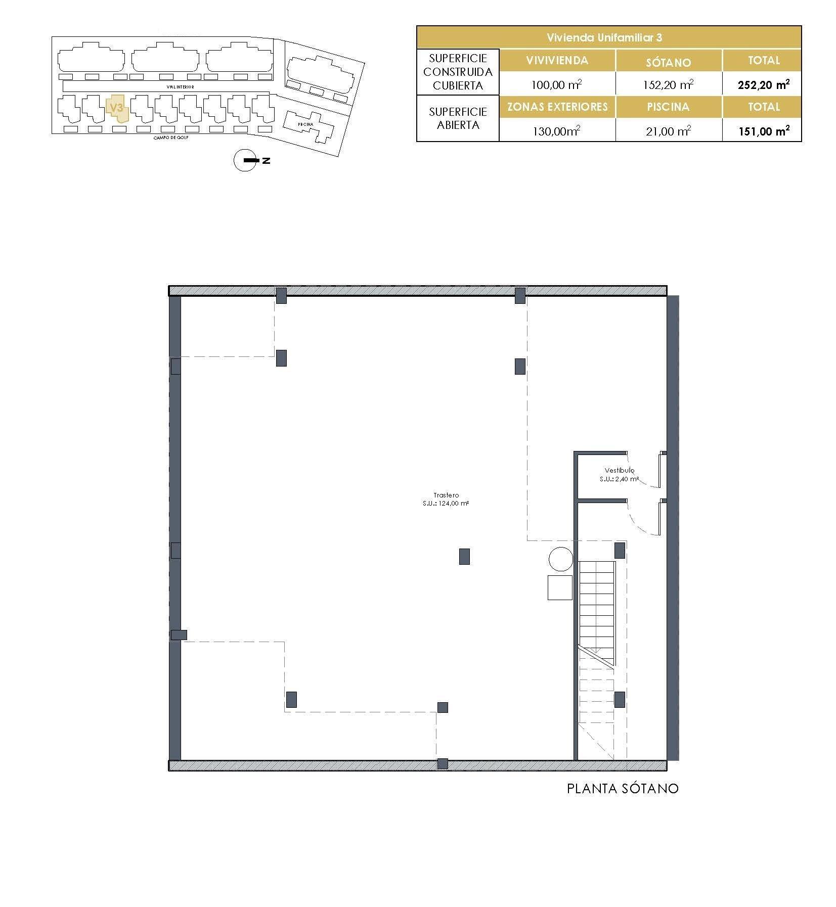
Villa en Los Alcazares, con 252 m² construidos, 100 m² útiles, 250 m² metros de parcela, 3 dormitorios, 2 baños, piscina privada
Apartamentos y villas de nueva construcción frente al campo de golf La Serena Golf en Los Alcázares Exclusiva promoción residencial en primera línea del campo de golf La Serena Golf Descubra esta excepcional promoción residencial de nueva construcción situada en primera línea del campo de golf La Serena Golf en Los Alcázares, una de las localidades costeras más codiciadas de la Costa Cálida. Esta exclusiva comunidad ofrece un estilo de vida de primera clase rodeado de naturaleza, vistas despejadas y acceso directo a un prestigioso campo de golf de 18 hoyos conocido por su terreno llano, sus pintorescos lagos y sus retos técnicos. Con una ubicación ideal a solo 1,7 km de las playas del Mar Menor y del centro de la ciudad, los residentes pueden disfrutar tanto de la tranquilidad como de un fácil acceso a restaurantes, tiendas y todos los servicios esenciales. Los Alcázares es conocida por su ambiente relajado, sus largos paseos marítimos y sus cálidas aguas poco profundas, lo que la convierte en un lugar perfecto para vivir todo el año o para estancias vacacionales. Apartamentos modernos con terrazas y soláriums privados La promoción incluye 36 apartamentos contemporáneos distribuidos en cuatro bloques. Los compradores pueden elegir entre distribuciones de dos o tres dormitorios con dos baños, incluido uno en suite. Los apartamentos de planta baja cuentan con amplias terrazas con la opción de añadir una piscina privada. Las viviendas de las plantas intermedias ofrecen generosas terrazas exteriores, mientras que los áticos incluyen soláriums privados ideales para tomar el sol y cenar al aire libre. Todos los apartamentos incluyen aparcamiento subterráneo y un trastero con acceso mediante ascensor. La comunidad también ofrece unos jardines mediterráneos con un bonito diseño paisajístico y una gran piscina comunitaria para el disfrute de los residentes. Elegantes villas de una sola planta con piscina privada Además de los apartamentos, la promoción ofrece nueve exclusivas villas de una sola planta. Estas viviendas cuentan con tres dormitorios, dos baños y un aseo adicional para invitados, todo ello diseñado para proporcionar una vida interior y exterior sin fisuras. Cada villa incluye una piscina privada, jardín, trastero y aparcamiento privado. Un amplio sótano diáfano proporciona un espacio adicional flexible que puede adaptarse a las necesidades individuales, como un gimnasio, una zona de ocio o un trastero adicional. Acabados de alta calidad y diseño energéticamente eficiente Todas las propiedades están construidas con materiales de alta calidad y especificaciones modernas. Entre las características se incluyen carpintería exterior de aluminio con rotura de puente térmico, baños totalmente equipados con muebles de tocador y mamparas de ducha de cristal, así como preinstalación para aire acondicionado por conductos y cocinas amuebladas en los apartamentos. Las villas cuentan con sistemas de aire acondicionado totalmente instalados y cocinas equipadas con electrodomésticos. Los bloques de apartamentos disponen de ascensores, lo que garantiza la comodidad y la accesibilidad. Ubicación privilegiada cerca del golf, las playas y los servicios Esta promoción ofrece una excelente conectividad con los principales puntos de interés. El Aeropuerto Internacional de Murcia está a 35 km y el de Alicante a 95 km. El puerto deportivo de Los Alcázares está a solo 2 km, el centro comercial Dos Mares a 15 km y Roda Golf a solo 4 km de la promoción. El centro de Cartagena se encuentra a 25 km. Una inversión ideal y una oportunidad para disfrutar del estilo de vida mediterráneo Esta promoción frente al campo de golf ofrece una oportunidad única para disfrutar de una vida moderna en un entorno privilegiado, cerca tanto del mar como del golf. Póngase en contacto con nosotros hoy mismo para recibir más información o concertar una visita y encontrar su hogar perfecto en Los Alcázares.
