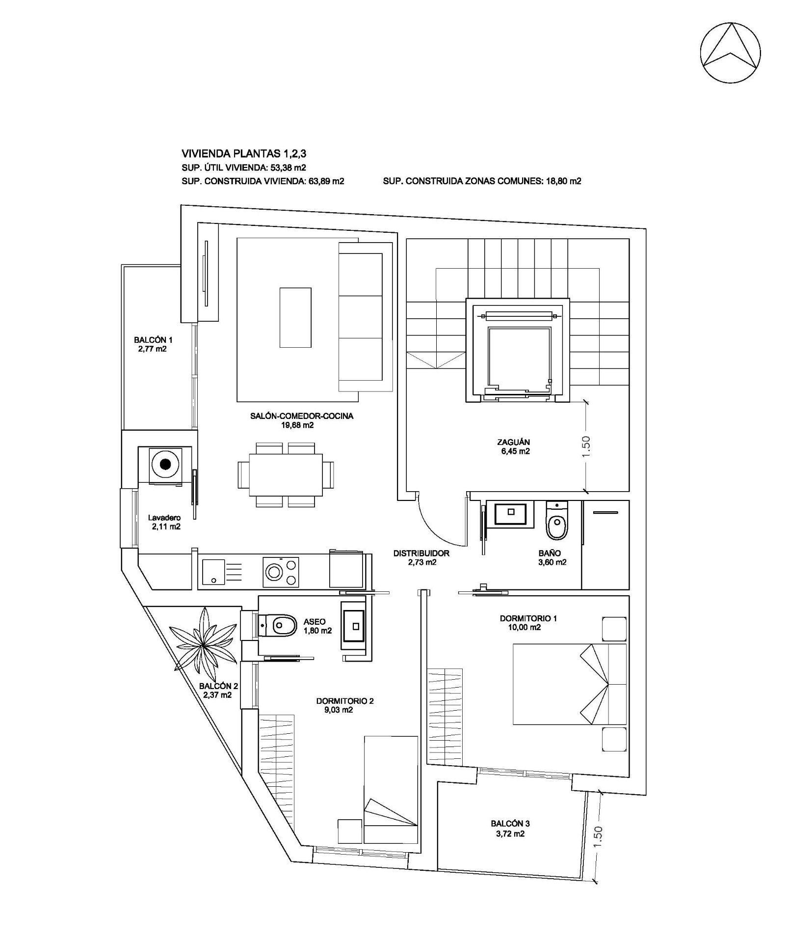
Apartamento en Bigastro, con 63 m² construidos, 53 m² útiles, 2 dormitorios, 1 baños
Apartamentos de nueva construcción en Bigastro Costa Blanca: vida moderna en la Vega Baja Apartamentos contemporáneos en el corazón de Bigastro Descubre esta exclusiva promoción de nueva construcción compuesta por solo tres modernos apartamentos situados en el centro de Bigastro, una encantadora localidad de la comarca de la Vega Baja, en Alicante. Conocido por su ambiente tranquilo y su carácter tradicional español, Bigastro ofrece un entorno ideal para quienes buscan un estilo de vida relajado sin perder la conexión con los principales destinos costeros de la Costa Blanca. El edificio goza de una ubicación ideal junto al ayuntamiento y la iglesia, lo que sitúa todos los servicios esenciales, como tiendas, restaurantes, colegios y centros médicos, a poca distancia a pie. Gracias a las excelentes conexiones por carretera, los residentes pueden llegar fácilmente a localidades cercanas como Orihuela, Torrevieja y Guardamar del Segura. Amplios apartamentos con balcones y solárium Este edificio boutique consta de una planta baja dedicada a locales comerciales y tres plantas superiores, con un apartamento por planta, lo que garantiza privacidad y exclusividad. Cada apartamento cuenta con dos dormitorios, un cuarto de baño completo y un aseo adicional. Una característica destacada de estas viviendas es la presencia de tres balcones por apartamento, lo que permite que la luz natural inunde los espacios habitables a la vez que ofrece múltiples zonas al aire libre para disfrutar del clima mediterráneo. Los residentes también se benefician de un solárium comunitario en la azotea, al que se accede en ascensor, perfecto para relajarse al aire libre, así como de un trastero privado para cada vivienda. Acabados de alta calidad y confort moderno Todos los apartamentos se entregan con especificaciones de alta calidad diseñadas para el confort y la eficiencia energética. Las viviendas incluyen aire acondicionado por conductos totalmente instalado, modernas cocinas amuebladas equipadas con electrodomésticos y persianas eléctricas en los dormitorios. Los cuartos de baño vienen totalmente equipados con muebles de tocador y mamparas de ducha, mientras que otras características incluyen una puerta de entrada de seguridad reforzada, un sistema aerotérmico para el agua caliente y un ascensor que da servicio a todas las plantas. Aunque el edificio no incluye aparcamiento privado, existe la opción de alquilar plazas en un aparcamiento municipal cercano situado junto a la propiedad. Ubicación privilegiada en la Vega Baja, cerca de la costa y de los servicios Bigastro ofrece una ubicación estratégica en el sur de la Costa Blanca. El centro de Orihuela está a solo 5 km, mientras que las playas de Guardamar del Segura se encuentran a unos 25 km. Torrevieja se encuentra a 30 km de la urbanización y el centro comercial La Zenia Boulevard también está a unos 30 km. El Aeropuerto Internacional de Alicante está a 55 km, y se puede llegar a varios campos de golf en un radio de 20 km, lo que convierte a esta ubicación en una excelente opción tanto para el ocio como por su accesibilidad. Una oportunidad ideal como inversión o vivienda permanente Estos apartamentos de nueva construcción ofrecen una fantástica oportunidad para disfrutar de una vida moderna en una localidad española tradicional con excelentes conexiones y una excelente relación calidad_precio. Póngase en contacto con nosotros hoy mismo para obtener más información o concertar una visita y asegurarse su nuevo hogar en Bigastro, en la Costa Blanca.
