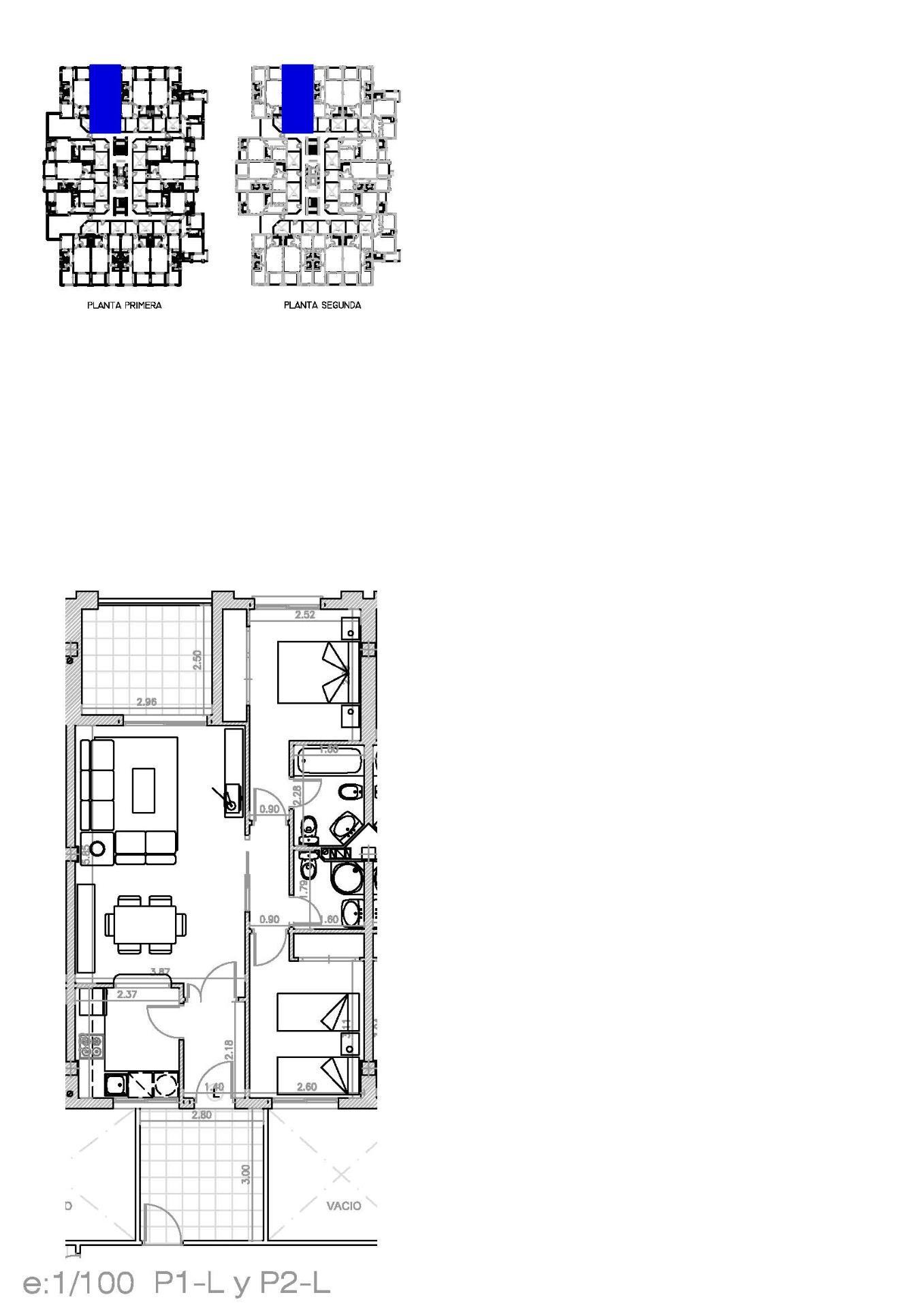
Apartamento en Orihuela Costa, con 69 m² construidos, 60 m² útiles, 2 dormitorios, 2 baños, piscina privada
Complejo Residencial Regenerado en Lomas de Cabo Roig _ Apartamentos Reformados Apartamentos en una ubicación privilegiada Descubra esta oportunidad exclusiva de poseer un apartamento renovado en Lomas de Cabo Roig, una zona muy solicitada de Orihuela Costa. Este complejo residencial, construido originalmente en 2008, está siendo renovado en algunas unidades y se entregará en junio de 2025. Una casa piloto está disponible para su visualización, lo que le permite ver la calidad de los acabados de primera mano. Opciones inmobiliarias para todas las necesidades Esta promoción ofrece 27 apartamentos reformados, con una gran variedad de distribuciones: Viviendas de 1 y 2 dormitorios, ideales para vacaciones o inversión. Apartamentos en planta baja con jardín privado, perfectos para vivir al aire libre. Apartamentos de planta media con amplias terrazas, ideales para disfrutar del clima mediterráneo. Áticos con solárium privado, que ofrecen vistas abiertas y la máxima privacidad. Cada vivienda se entrega con mamparas de ducha en los baños y cocinas totalmente equipadas con electrodomésticos, garantizando una solución llave en mano para los compradores. Servicios comunitarios exclusivos El complejo residencial está diseñado para la comodidad y la relajación, con: Una piscina comunitaria rodeada de hermosos jardines paisajísticos. Ascensor para facilitar el acceso a todas las plantas. Plazas de aparcamiento subterráneo opcionales disponibles por un coste adicional. Una ubicación inmejorable en Orihuela Costa Lomas de Cabo Roig es una prestigiosa zona residencial situada a sólo 2 km de la costa de Cabo Roig, hogar de algunas de las playas más hermosas de Orihuela Costa. La zona está bien comunicada por carretera y ofrece una amplia gama de servicios, incluyendo tiendas, restaurantes, supermercados y centros comerciales. Distancias a puntos clave de interés: Playas de Cabo Roig y Campoamor _ 5 minutos en coche. Centro Comercial Zenia Boulevard _ 5 km. Campo de Golf Villamartín _ 4 km. Aeropuerto de Alicante _ 30 minutos en coche. Aeropuerto Murcia_Corvera _ 1 hora en coche. Una inversión inteligente en la Costa Blanca Con su excelente ubicación, apartamentos totalmente renovados y servicios de primer nivel, esta promoción es una oportunidad ideal para invertir, vivir de vacaciones o como residencia permanente. No deje pasar esta oportunidad única de poseer una vivienda en una de las zonas más deseadas de la Costa Blanca a un precio inmejorable. Póngase en contacto con nosotros para más información o para concertar una visita.
