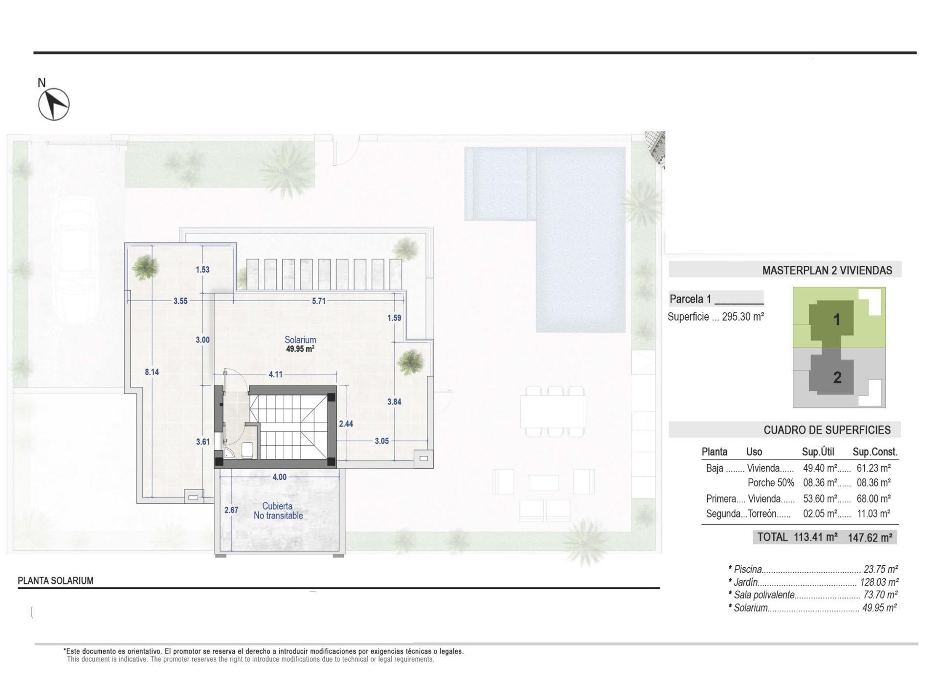
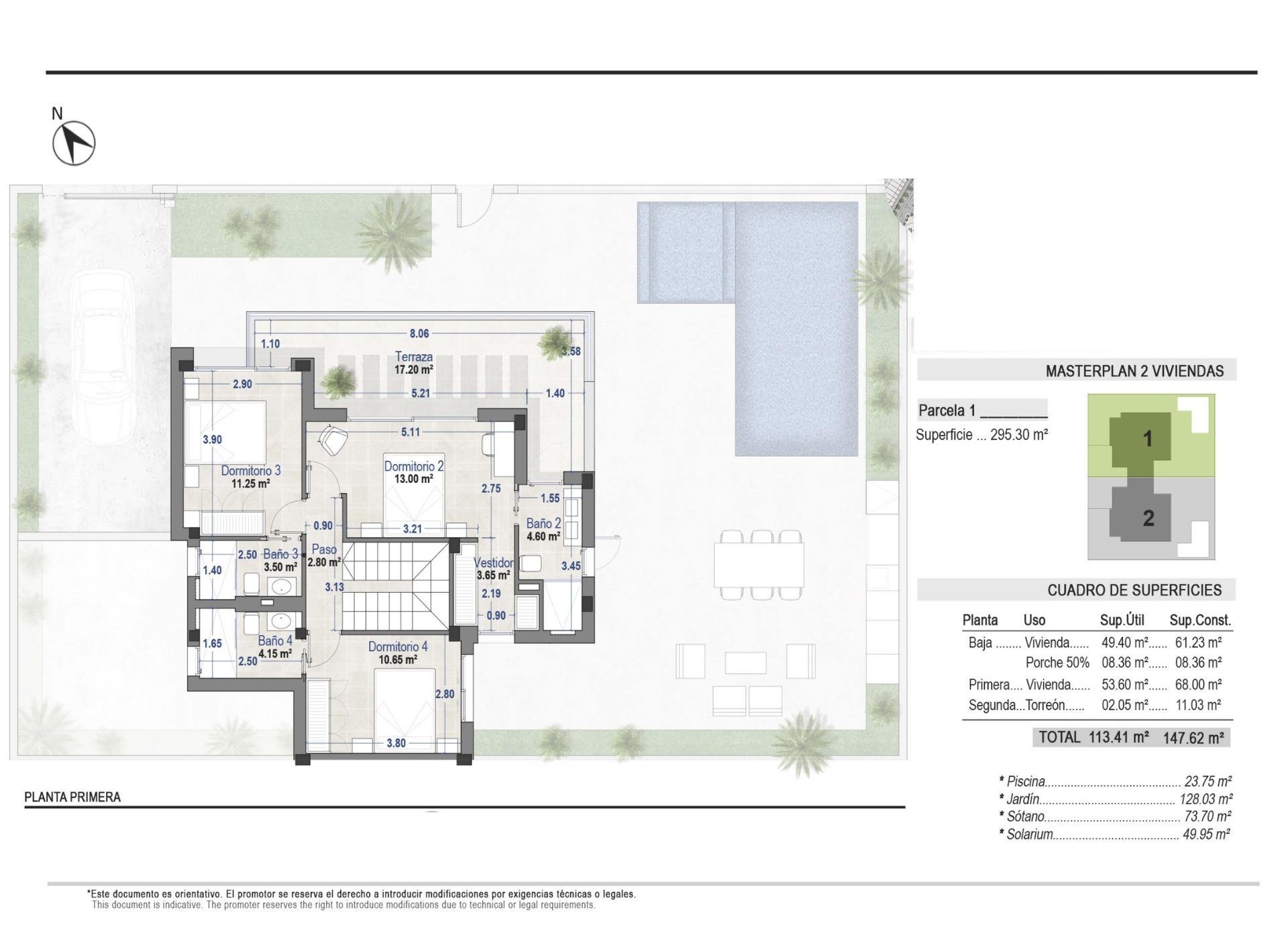
Villa en Torre Pacheco, con 220 m² construidos, 113 m² útiles, 295 m² metros de parcela, 4 dormitorios, 4 baños, piscina privada
Modernas villas adosadas en Santa Rosalía Lake and Life Resort: un nuevo estándar de lujo mediterráneo Diseño contemporáneo inspirado en el Mediterráneo Descubra estas exclusivas villas adosadas situadas en el prestigioso Santa Rosalía Lake and Life Resort, un destino residencial único en la Costa Cálida. Inspiradas en la arquitectura mediterránea, estas villas combinan líneas limpias, luz natural y comodidad moderna para crear un entorno armonioso y elegante. Cada villa está diseñada para ofrecer un equilibrio perfecto entre lujo y relajación, lo que la hace ideal como residencia permanente, casa de vacaciones u oportunidad de inversión. Distribución espaciosa y acabados de alta gama Cada villa ofrece 220 m² de superficie habitable distribuidos en un sótano, dos plantas principales y un solárium en la azotea, situados en generosas parcelas de 295 m². Las viviendas cuentan con 4 dormitorios y 4 baños 3 en suite, lo que proporciona un amplio espacio para la familia y los invitados. La piscina privada con zona de jacuzzi, las amplias terrazas y el solárium en la azotea con cocina de verano y aseo invitan a disfrutar del excepcional clima de la región durante todo el año. Las especificaciones premium incluyen: Cocina totalmente equipada con electrodomésticos Bosch Baños con muebles, espejos, mamparas de ducha y calentadores de toallas Puerta de entrada blindada y puerta de acceso motorizada para vehículos Focos LED en todo el interior y el exterior Aire acondicionado por conductos instalado en ambas plantas Piscina privada con zona de jacuzzi 2 paneles solares fotovoltaicos para la eficiencia energética Cocina de verano en el jardín Planta subterránea con patio inglés para la luz natural y la ventilación Vida estilo resort en Santa Rosalía Santa Rosalía Lake and Life Resort es una comunidad privada y cerrada con seguridad las 24 horas, diseñada en torno a unas impresionantes 126 000 m² de zonas verdes. Los residentes disfrutan de senderos para caminar y montar en bicicleta, instalaciones deportivas, pistas de pádel y tenis, minigolf, jardines, parques para perros y zonas de ocio. La casa club y la pieza central del complejo, una impresionante laguna cristalina de 17 000 m² rodeada de playas de arena blanca y palmeras, ofrecen un auténtico estilo de vida inspirado en el Caribe. La laguna cuenta incluso con dos islas, una de ellas con su propio bar, y varios chiringuitos en la playa para comer de forma relajada. Ubicación privilegiada en la Costa Cálida La promoción goza de una ubicación céntrica dentro del complejo, cerca de la laguna y del club de playa. Se encuentra a menos de 4 km de la playa de Los Alcázares, a 15 minutos de Cartagena y a solo 22 km del aeropuerto internacional de Murcia. Los amantes del golf encontrarán varios campos de primera categoría a poca distancia en coche, mientras que los puertos deportivos, restaurantes y zonas comerciales locales completan la vibrante oferta de estilo de vida. Su exclusivo refugio mediterráneo le espera Experimente la combinación perfecta de lujo, comodidad y bienestar en el corazón de la Costa Cálida. Póngase en contacto con nosotros hoy mismo para concertar una visita y descubrir la villa de sus sueños en Santa Rosalía Lake and Life Resort.
