Venta de villa en Finestrat, Finestrat

Referencia:

V1-N9579

Villa en venta

Finestrat, Finestrat mapa

849.000 € (impuestos y gastos no incluídos)
255 m2
4
4
Descripción

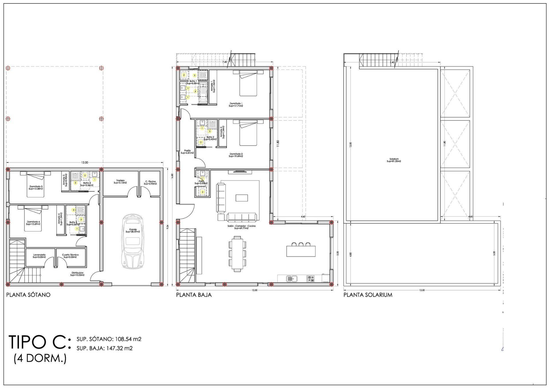
Villa en Finestrat, con 255 m² construidos, 147 m² útiles, 501 m² metros de parcela, 4 dormitorios, 4 baños, piscina privada

Villas de lujo de nueva construcción en Finestrat, cerca de Benidorm Colección exclusiva de villas independientes sostenibles Esta prestigiosa promoción cuenta con 36 villas independientes en la codiciada urbanización Bahía Golf, en Finestrat, a solo 3,5 km de la costa mediterránea. Diseñadas para combinar lujo, comodidad y sostenibilidad, estas modernas viviendas ofrecen un estilo de vida excepcional en la Costa Blanca, rodeadas de naturaleza pero cerca de todos los servicios. Cada villa cuenta con 3 o 4 amplios dormitorios, jardines privados y una piscina infinita privada. Algunas viviendas disfrutan de impresionantes vistas al mar, mientras que todas ellas se encuentran en generosas parcelas de más de 500 m2 con superficies construidas a partir de 222 m2. Distribuciones flexibles con sótano y solárium en la azotea Los compradores pueden elegir entre cuatro distribuciones diferentes, todas ellas cuidadosamente diseñadas para maximizar el espacio y la luz natural. Todas las villas incluyen un sótano con aparcamiento privado, trastero, lavadero y dos dormitorios con baños en suite conectados a un patio inglés para aprovechar la luz natural y la ventilación. La planta baja cuenta con uno o dos dormitorios adicionales con baño en suite, un aseo de invitados y una cocina abierta conectada al salón y al comedor, con acceso directo a la terraza y la piscina. Cada propiedad cuenta con un solárium en la azotea, que ofrece vistas panorámicas a la montaña o al mar y la opción de instalar un jacuzzi. Acabados de alta calidad y eficiencia energética BREEAM Estas villas están construidas según los estándares de certificación BREEAM, lo que garantiza un excelente rendimiento energético y responsabilidad medioambiental. Las especificaciones premium incluyen: Ventanas de aluminio de doble acristalamiento con rotura de puente térmico y persianas eléctricas Aire acondicionado por conductos totalmente instalado Puerta de acceso motorizada para vehículos Piscina privada y jardín paisajístico Cocina moderna de PORCELANOSA equipada con electrodomésticos Baños de diseño con muebles, espejos y duchas a ras de suelo Gres porcelánico de PORCELANOSA Ubicación privilegiada cerca de playas, golf y tiendas Finestrat es una encantadora localidad situada entre las montañas y el mar, que ofrece tranquilidad a pocos minutos de la animada Benidorm. La zona combina la belleza natural con excelentes infraestructuras, colegios internacionales, restaurantes y centros comerciales. Distancias a puntos de interés clave Playas de Benidorm 3,5 km Centro comercial La Marina 1 km Puig Campana Golf 3 km Casco antiguo de Benidorm 4 km Aeropuerto de Alicante 55 km Acceso a la autopista A7 2 km Viva el sueño mediterráneo en Finestrat Estas villas ofrecen el equilibrio perfecto entre lujo, naturaleza y conectividad en la Costa Blanca. Póngase en contacto con nosotros hoy mismo para recibir más información o concertar una visita privada a estas excepcionales viviendas de nueva construcción en Finestrat.

Características
Inmueble
  • 255 M2 Construidos
  • 147 M2 Útiles
  • 501 M2 Metros de parcela
  • 4 Dormitorios
  • 4 Baños
Edificio
Extras
  • Piscina privada
Certificado energético
certificado energético
Simulador de hipoteca
Precio inmueble
Impuestos y gastos
Precio + gastos
0 €
Ahorro aportado
Plazo en años
Interés
Tu cuota mensual
0
Estos resultados son orientativos, calculados con los números que has introducido.
Mapa
Otros inmuebles que podrían ser de su interés

Pisos Torrevieja y Casas Torrevieja

Esta página web utiliza cookies

Una cookie informática es un pequeño archivo de información que se guarda en tu navegador cada vez que visitas nuestra página web.

Nuestra página web utiliza entre otras, cookies técnicas que son imprescindibles para que la página pueda funcionar. Las tenemos activadas por defecto, pues no necesitan de tu autorización.

Más información en nuestro apartado POLÍTICA DE COOKIES.