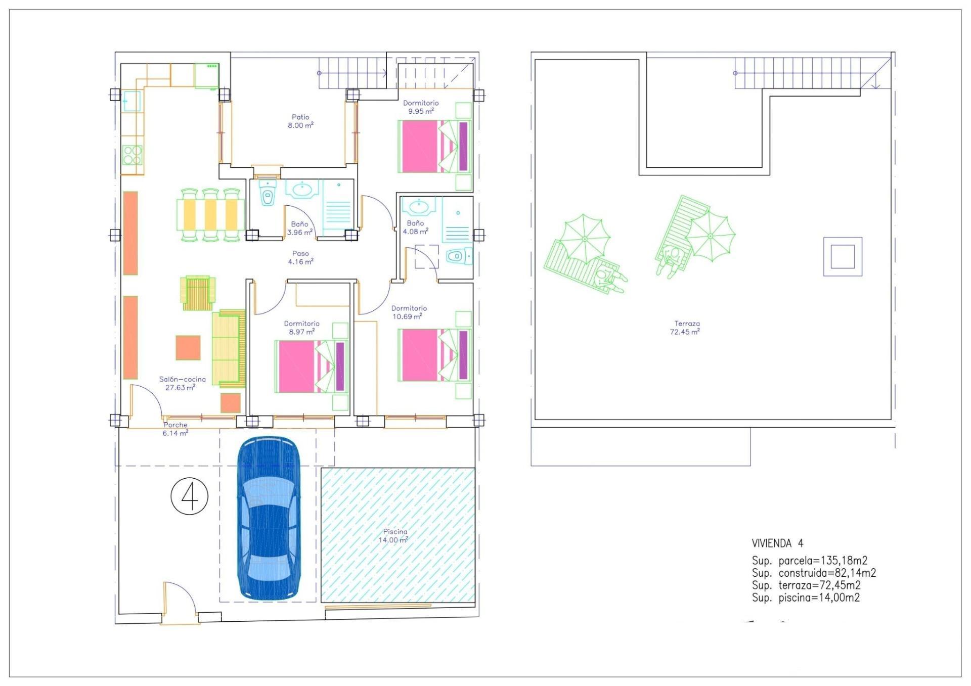
Piso en Avileses, con 82 m² construidos, 78 m² útiles, 135 m² metros de parcela, 3 dormitorios, 2 baños, piscina privada
Casas adosadas de nueva construcción con piscina privada en Avileses, Murcia Modernas viviendas de una sola planta en una tranquila ubicación de Murcia Esta nueva promoción residencial consta de cinco casas adosadas de estilo contemporáneo situadas en Avileses, un pueblo tradicional español de la región de Murcia. Conocido por su ambiente relajado y su encanto local, Avileses ofrece servicios diarios, instalaciones deportivas y un auténtico estilo de vida mediterráneo, sin dejar de estar cerca de campos de golf, playas y las principales conexiones de transporte. La zona es ideal para vivir de forma permanente, pasar las vacaciones o invertir, gracias a su excelente relación calidad_precio y a la creciente demanda. Distribución bien pensada, diseñada para disfrutar de la vida al aire libre Todas las viviendas son de una sola planta y han sido diseñadas para disfrutar del sol durante todo el año. Cada propiedad cuenta con una terraza delantera, un patio trasero privado y un amplio solárium en la azotea, lo que crea múltiples zonas al aire libre para relajarse y divertirse. El jardín privado incluye una piscina y aparcamiento en la parcela, lo que garantiza la comodidad y la privacidad de todos los propietarios. En el interior, las viviendas ofrecen una distribución práctica y luminosa con tres dormitorios y dos baños, incluido un dormitorio principal con baño en suite. El diseño abierto y funcional potencia la luz natural y crea un ambiente acogedor, ideal tanto para familias como para parejas. Especificaciones de alta calidad y comodidad moderna Estas casas adosadas de nueva construcción se entregan con acabados de alta calidad e instalaciones modernas. Las cocinas están completamente amuebladas y equipadas con electrodomésticos Balay, incluyendo vitrocerámica, horno, microondas, campana extractora, frigorífico integrado y lavavajillas integrado. Los baños están completamente equipados con inodoros suspendidos, tocadores, espejos, columnas de ducha de lluvia y mamparas de ducha. Otras características adicionales son las persianas motorizadas en las ventanas frontales, los armarios empotrados con cajones, la iluminación interior LED en la cocina, la sala de estar, el pasillo y los baños, y la iluminación LED integrada en las paredes del jardín y el solárium. El agua caliente se produce mediante un sistema aerotérmico y se incluye la preinstalación de aire acondicionado por conductos para garantizar el confort durante todo el año. Excelente ubicación cerca de campos de golf, playas y aeropuerto Avileses está rodeado de varios campos de golf de renombre, lo que lo convierte en una excelente opción para los amantes de este deporte. La Torre Golf Resort se encuentra a unos 6 km y Hacienda Riquelme Golf, a unos 7 km de la urbanización. El Mar Menor y las playas del Mediterráneo se encuentran a unos 15 km y ofrecen una amplia gama de deportes acuáticos y actividades de ocio. El aeropuerto internacional de Murcia está a solo 20 km, mientras que la ciudad de Murcia se encuentra a unos 25 km, donde se puede disfrutar de tiendas, cultura y gastronomía. Una inversión inteligente en la Costa Cálida Con un diseño moderno, piscinas privadas y una excelente ubicación cerca de campos de golf y playas, estas casas adosadas de nueva construcción en Avileses ofrecen un valor excepcional y un gran potencial de estilo de vida. Póngase en contacto con nosotros hoy mismo para recibir más información o concertar una visita y asegurarse su nueva vivienda en Murcia.
